РАБОЧАЯ ДОКУМЕНТАЦИЯ
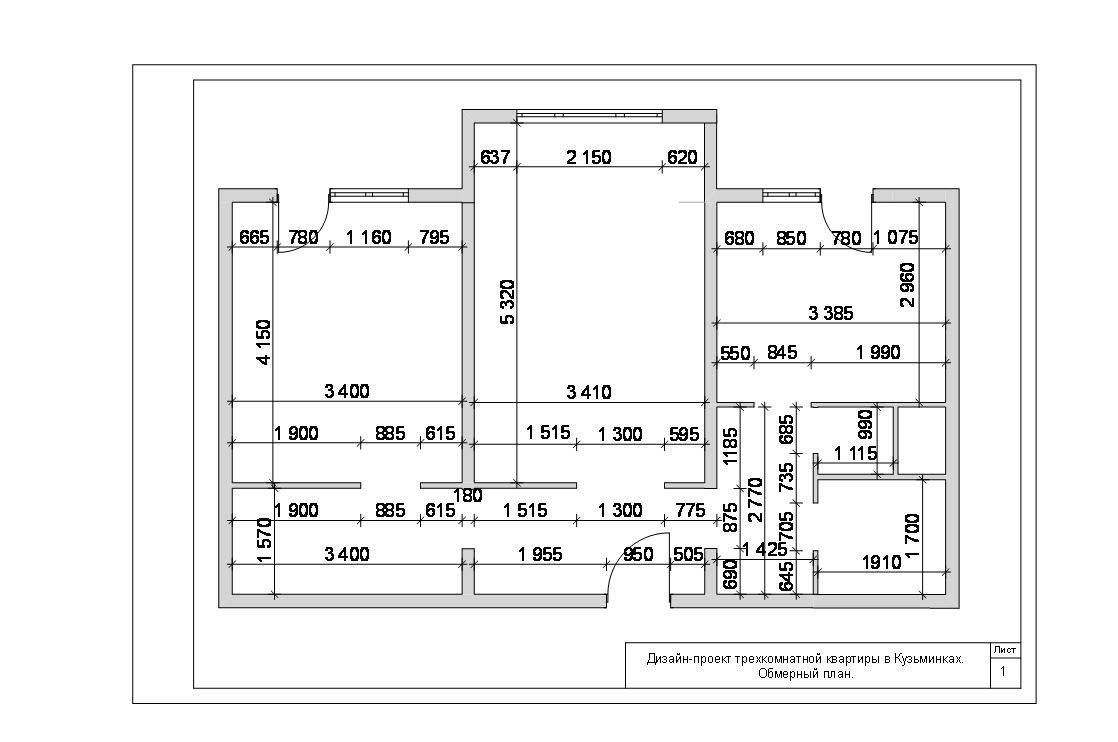
ОБМЕРНЫЙ ПЛАН

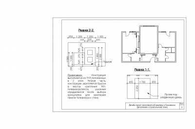
СТРОИТЕЛЬНЫЙ ПЛАН И ДОПОЛНЕНИЯ К СТРОИТЕЛЬНОМУ ПЛАНУ



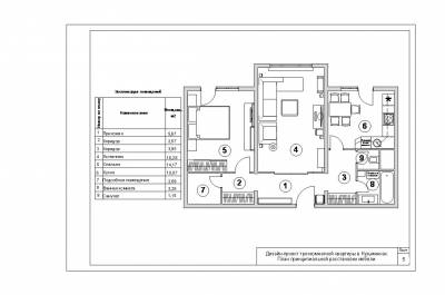
ПЛАН ПРИНЦИПИАЛЬНОЙ РАССТАНОВКИ МЕБЕЛИ

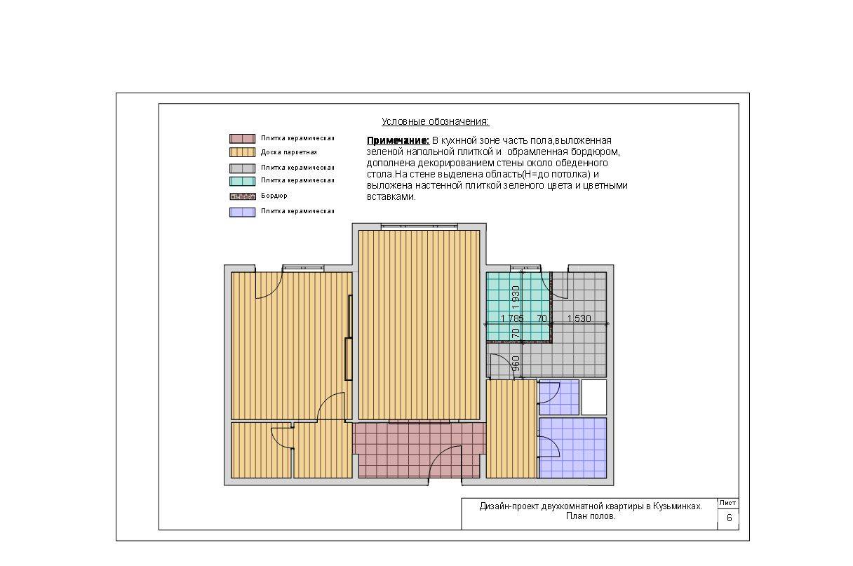
ПЛАН ПОЛОВ

ПЛАН ПОТОЛКОВ

ПЛАН РАССТАНОВКИ ОСВЕТИТЕЛЬНЫХ ПРИБОРОВ И ВЫКЛЮЧАТЕЛЕЙ

СХЕМА РАЗМЕЩЕНИЯ РОЗЕТОК И ЭЛЕКТРОВЫВОДОВ

СХЕМА РАЗМЕЩЕНИЯ КУХОННОЙ МЕБЕЛИ

ТАБЛИЦА ВЫБОРОЧНОГО ПОДБОРА ОТДЕЛОЧНЫХ МАТЕРИАЛОВ И ПРЕДМЕТОВ МЕБЕЛИ



Посмотреть фотореалистические изображения по данному проекту
Посмотреть варианты не вошедшие в проект по данному проекту
Вернуться в раздел ПРИМЕР ПОЛНОГО ДИЗАЙН-ПРОЕКТА ДВУХКОМНАТНОЙ КВАРТИРЫ
ОБМЕРНЫЙ ПЛАН

СТРОИТЕЛЬНЫЙ ПЛАН И ДОПОЛНЕНИЯ К СТРОИТЕЛЬНОМУ ПЛАНУ



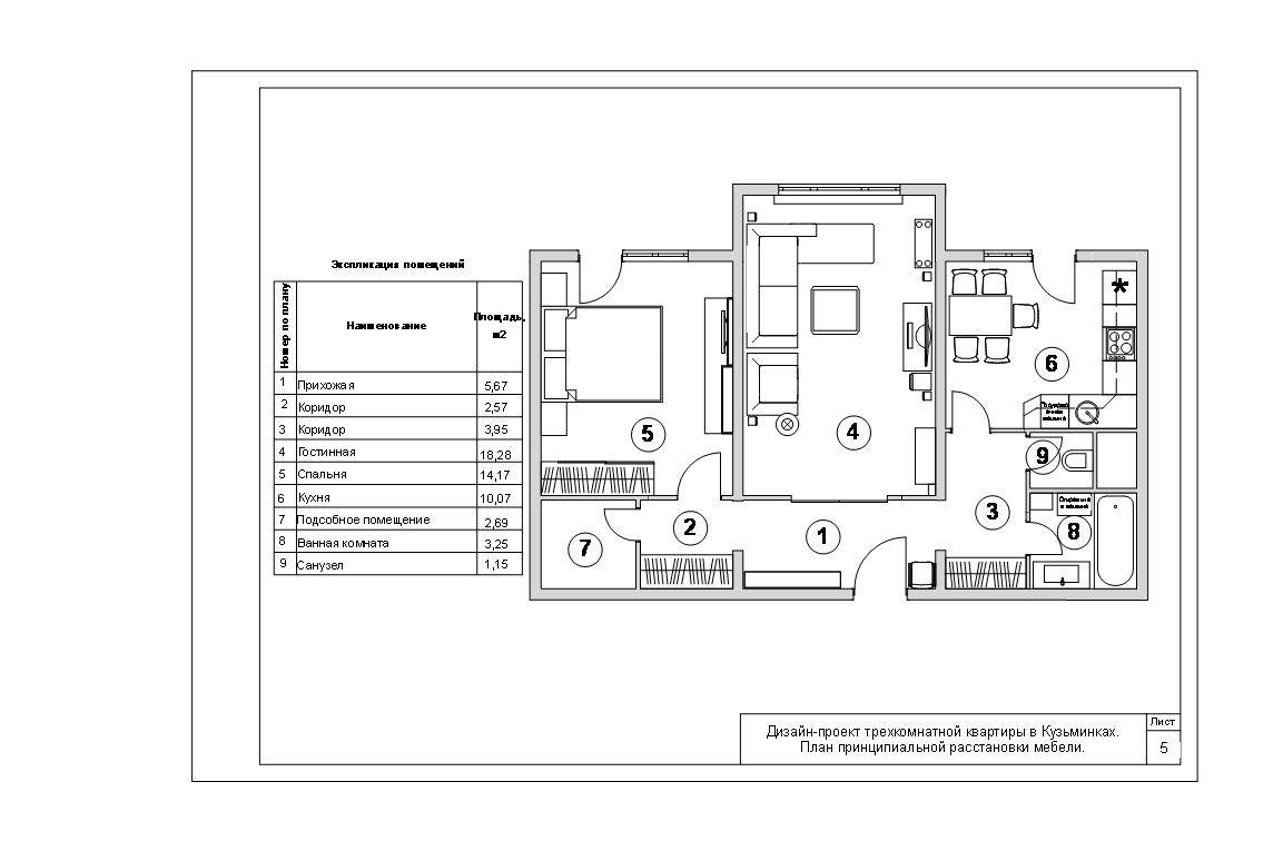
ПЛАН ПРИНЦИПИАЛЬНОЙ РАССТАНОВКИ МЕБЕЛИ

ПЛАН ПОЛОВ

ПЛАН ПОТОЛКОВ

ПЛАН РАССТАНОВКИ ОСВЕТИТЕЛЬНЫХ ПРИБОРОВ И ВЫКЛЮЧАТЕЛЕЙ

СХЕМА РАЗМЕЩЕНИЯ РОЗЕТОК И ЭЛЕКТРОВЫВОДОВ

СХЕМА РАЗМЕЩЕНИЯ КУХОННОЙ МЕБЕЛИ

ТАБЛИЦА ВЫБОРОЧНОГО ПОДБОРА ОТДЕЛОЧНЫХ МАТЕРИАЛОВ И ПРЕДМЕТОВ МЕБЕЛИ



Посмотреть фотореалистические изображения по данному проекту
Посмотреть варианты не вошедшие в проект по данному проекту
Вернуться в раздел ПРИМЕР ПОЛНОГО ДИЗАЙН-ПРОЕКТА ДВУХКОМНАТНОЙ КВАРТИРЫ


