РАБОЧАЯ ДОКУМЕНТАЦИЯ.
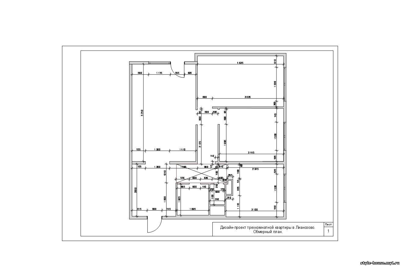
ОБМЕРНЫЙ ПЛАН

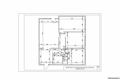
СТРОИТЕЛЬНЫЙ ПЛАН

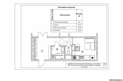
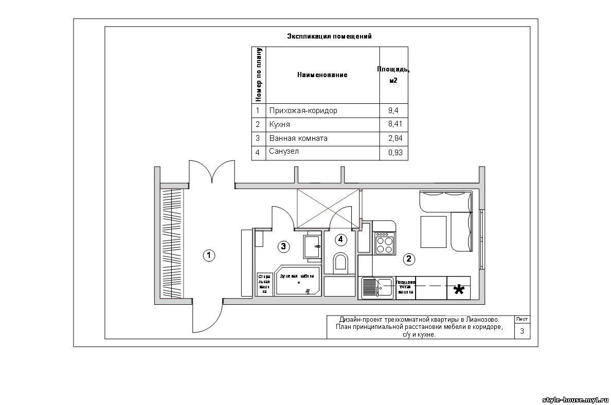
ПЛАН ПРИНЦИПИАЛЬНОЙ РАССТАНОВКИ МЕБЕЛИ

ПЛАН ПОЛОВ

ПЛАН ПОТОЛКОВ

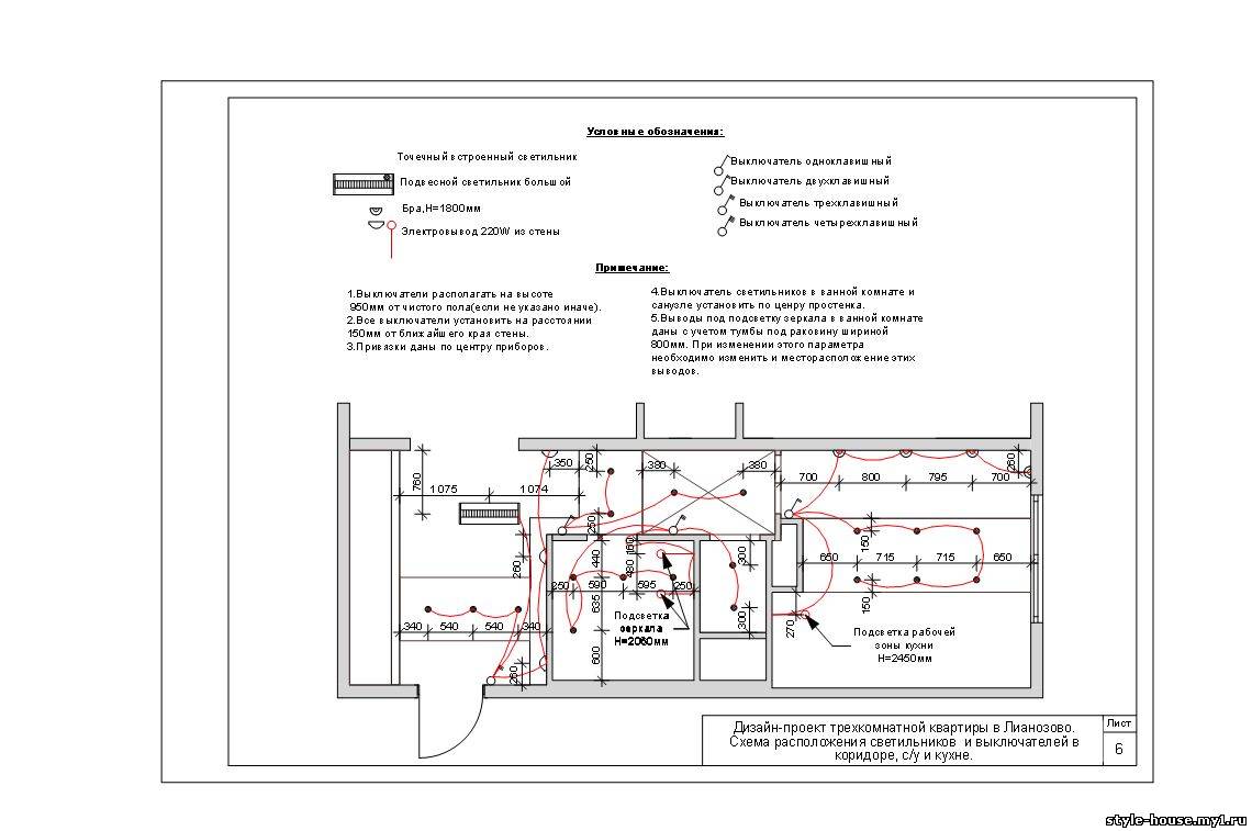
СХЕМА РАСПОЛОЖЕНИЯ СВЕТИЛЬНИКОВ И ВЫКЛЮЧАТЕЛЕЙ

ФАСАД ШКАФА-КУПЕ В КОРИДОРЕ

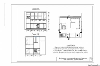
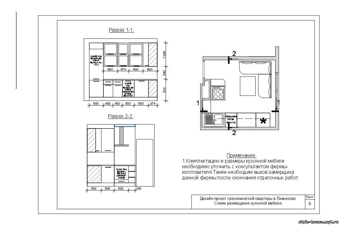
СХЕМА РАЗМЕЩЕНИЯ КУХОННОЙ МЕБЕЛИ

ТАБЛИЦА ВЫБОРОЧНОГО ПОДБОРА ОТДЕЛОЧНЫХ МАТЕРИАЛОВ,
ОСВЕТИТЕЛЬНЫХ ПРИБОРОВ И ПРЕДМЕТОВ МЕБЕЛИ


Посмотреть фотореалистические изображения
Посмотреть варианты не вошедшие в проект
Вернуться в раздел ПРИМЕР ДИЗАЙНА ОДНОГО ПОМЕЩЕНИЯ
ОБМЕРНЫЙ ПЛАН

СТРОИТЕЛЬНЫЙ ПЛАН

ПЛАН ПРИНЦИПИАЛЬНОЙ РАССТАНОВКИ МЕБЕЛИ

ПЛАН ПОЛОВ

ПЛАН ПОТОЛКОВ

СХЕМА РАСПОЛОЖЕНИЯ СВЕТИЛЬНИКОВ И ВЫКЛЮЧАТЕЛЕЙ

ФАСАД ШКАФА-КУПЕ В КОРИДОРЕ

СХЕМА РАЗМЕЩЕНИЯ КУХОННОЙ МЕБЕЛИ

ТАБЛИЦА ВЫБОРОЧНОГО ПОДБОРА ОТДЕЛОЧНЫХ МАТЕРИАЛОВ,
ОСВЕТИТЕЛЬНЫХ ПРИБОРОВ И ПРЕДМЕТОВ МЕБЕЛИ


Посмотреть фотореалистические изображения
Посмотреть варианты не вошедшие в проект
Вернуться в раздел ПРИМЕР ДИЗАЙНА ОДНОГО ПОМЕЩЕНИЯ


